卡吉斯容積式冷凝熱水鍋爐
效率 低排放 靜音
◆全預混燃燒,區間變頻調節
◆全冷凝結構,熱效率高
◆低氮氧化物排放,NOx≤30mg/m³
◆運行噪音≤40dB(A)
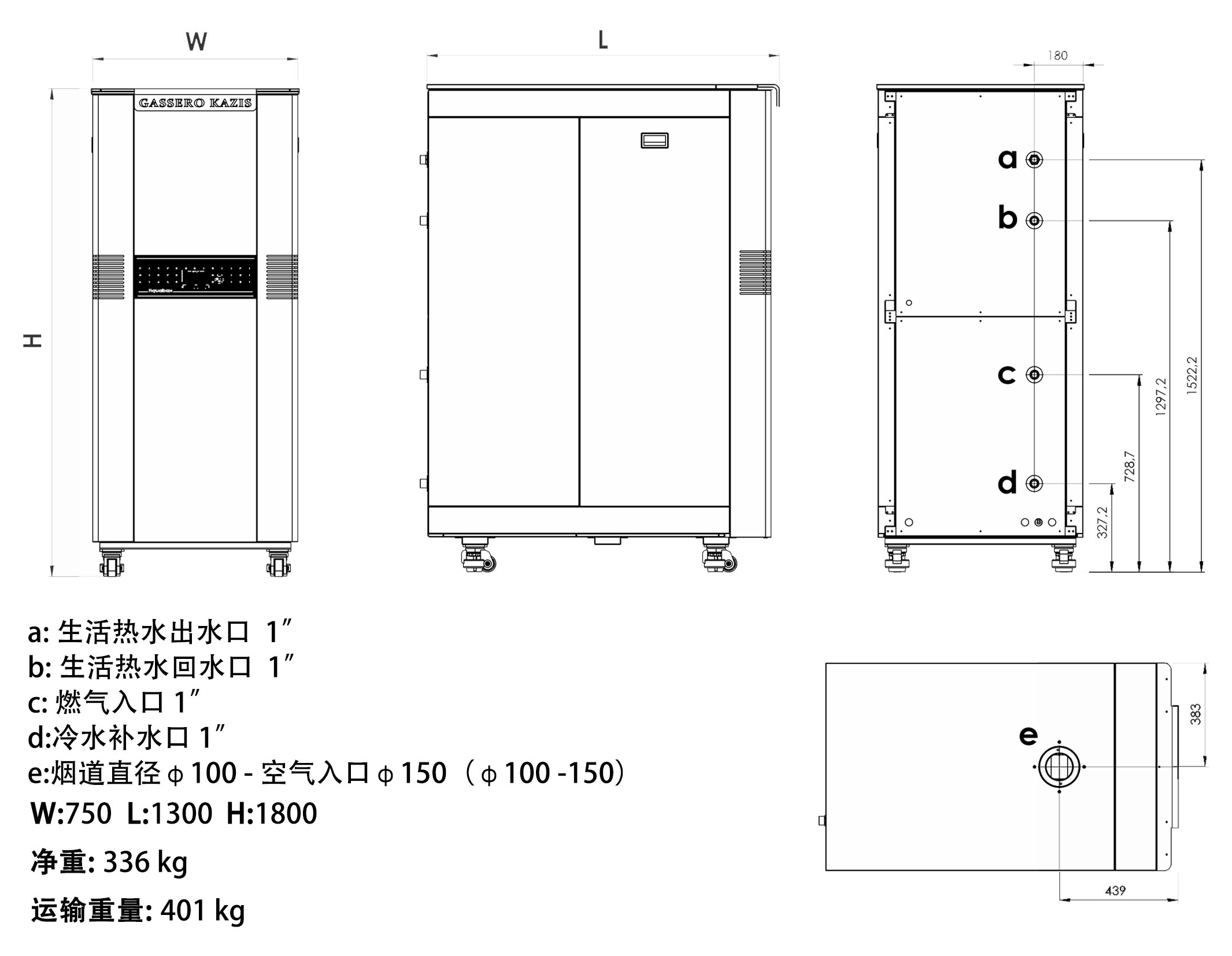
300L 水容積 多臺聯機組合 高承壓供水 免報裝免年檢
◆不銹鋼換熱管、儲罐容積高達300L.連續供水能力:2128L/H
◆1.6MPa 供水承壓能力,為高層輕松提供衛生熱水
◆可2~64臺聯機組合,智能調控組合運行
◆99kw功率輸出,免報裝手續、免年檢手續
鋁合金材質換熱器
◆6mm壁厚硅鋁合金換熱器材質
◆強換熱、防腐耐磨、無應力損害、使用壽命長
緊湊、獨特、新穎外觀設計
◆黑色聚碳酸酯前面板,嵌入式觸摸控制器
◆硅鋁換熱器、循環泵、膨脹罐、不銹鋼容積換熱盤管和嵌入式智能控制器組配
◆前衛設計、新穎外觀、智能嵌入
電容觸屏 智能集控
◆電容觸摸智能e體驗
◆兼容樓宇自控管理系統
◆生活熱水供應、記錄和信息查詢功能
◆自動殺菌清潔保護、按時段、按需求智能供水
適用范圍
◆學校、機關、廠礦、部隊生活熱水供應……
◆機場、車站、碼頭、醫院服務熱水提供……
◆賓館、酒店、泳池、洗浴中心商業熱水提供……


上一篇:卡吉斯換熱循環機組
下一篇:卡吉斯循環機組


